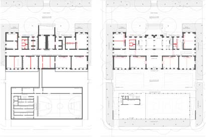
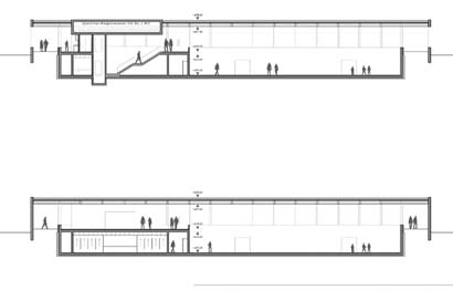
Erweiterung Schulhaus St.Leonhard CH-9000 St.Gallen
Startseite
- zurück
- weiter