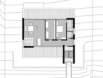
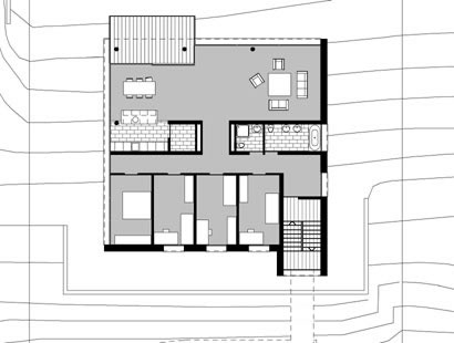
Neubau Mehrfamilienhaus CH-9000 St.Gallen 2003
Startseite
- zurück
- weiter