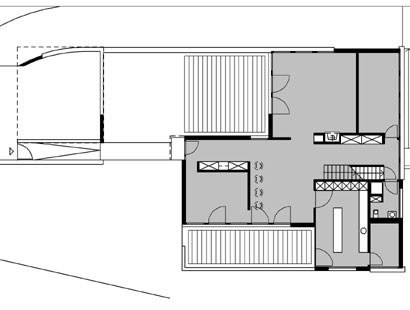
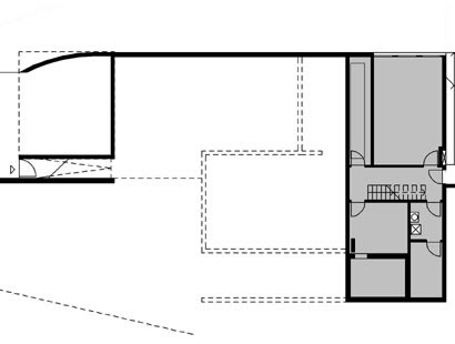
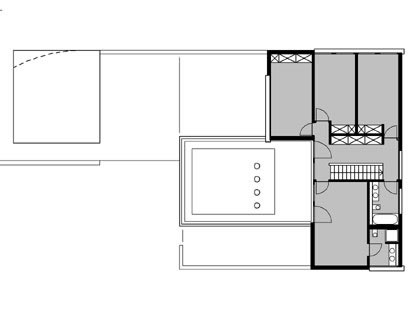
Neubau EFH Wienerbergstrasse CH-9010 St.Gallen 1999
Startseite
- zurück
- weiter